In der Gemeinderatssitzung im Juli 2025 wurde ein erstes grundsätzliches Planungskonzept für den Neubau des Feuerwehrhauses anerkannt. Dabei waren die wesentlichsten Planungsgrundlagen die Mannschaftsstärke von bis zu 80 aktiven Mitgliedern, die Berücksichtigung einer zusätzlichen Waschhalle und der Bau eines Übungsturms. Zusätzlich gab der 1. Kommandant Herr Holewa zu bedenken, dass es aus seiner Sicht zwingend notwendig wäre, dass die Einsatzkräfte im Alarmierungsfall auch von der Kreuter Straße auf das Grundstück fahren können.
Damit sich die Wege der anrückenden Einsatzkräfte mit den ausrückenden Feuerwehrfahrzeugen nicht kreuzen, wurden weitere Grundstücksverhandlungen geführt. In der Gemeinderatssitzung im November 2025 konnte das entsprechende Grundstücksgeschäft beschlossen werden.
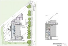
Die nun vorliegende Planung des Architekturbüros Wimmer wurde mit der Feuerwehr Schloßberg abgestimmt und in der Sitzung am 16.12.2025 von Herrn Kahlig vom Architekturbüro Wimmer erklärt.
Mit der vorliegenden Planung des Architekturbüros Wimmer mit vorläufigen Gesamtkosten in Höhe von ca. 9.200.000 € (brutto) bestand mit einem Abstimmungsergebnis von 23:0 Einverständnis im Gemeinderat. Im Zuge der Entwurfsplanung sind weitere mögliche Förderprogramme abzuklären und gegebenenfalls zu berücksichtigen.















